Sie haben Fragen, suchen Fachberatung, Montage, Inspektionen oder ein unverbindliches Erstgespräch?
+41 44 548 88 80
Kontakt
Planen Sie Ihr Regalsystem individuell mit unseren Konfiguratoren – inklusive direkter Anfrage
Palettenregal
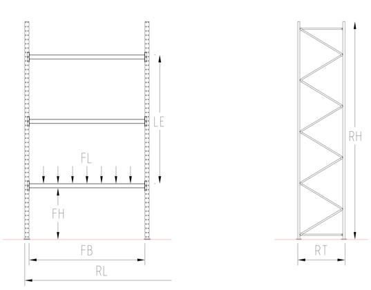
Informationen zum Palettenregal
Füllen Sie bitte die angegebenen Felder so weit wie möglich aus und klicken Sie dann auf „Abschicken“. Zusätzliche Angaben für eine erweiterte Anfrage oder individuelle Angebotserstellung können Sie am Ende des Formulars unter „Zusatzinfos“ eintragen. Vielen Dank!